top of page

PROJETO DE
REFORMA
Realizamos projetos de reforma visando otimizar sua área construída e atender às suas necessidades específicas. Com conhecimento aprofundado em engenharia civil, desenvolvemos soluções criativas e funcionais para maximizar o potencial do seu imóvel.
Conheça nosso serviço
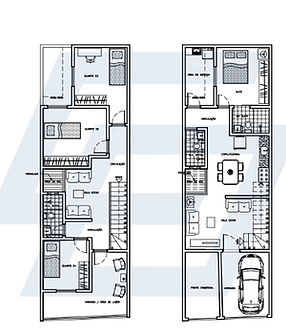
Assim como o projeto de edificações, tem a finalidade de otimizar a utilização dos ambientes de acordo com o programa de necessidades do cliente, as condições de iluminação e ventilação da região e as normas técnicas.
o projeto inclui:
-
PLANTA DE EDIFICAÇÃO;
-
QUADRO DE ÁREAS;
-
PLANTA DE COBERTA;
-
PLANTA DE SITUAÇÃO;
-
QUADRO DE ESQUADRIAS;
-
CORTES: TRANSVERSAL E LONGITUDINAL;
-
FACHADA (FOTO RENDERIZADA);
-
LAYOUT (DISPOSIÇÃO DA MOBÍLIA);
-
MAQUETE ELETRÔNICA 3D (OPCIONAL).
bottom of page














